P Signalmast 2025

Aus ITP
Zur Navigation springen Zur Suche springen

Projektbeschreibung

Hier mußte ein Signalmast in großer Höhenlage geplant werden. Die "Regelplanung" bedurfte einiger Anpassungen. Der Signalmast wurde mittels eines Rammpfahls und eines zusätzlichen Fundament gegründet.

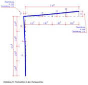
Als Ergebnis der Planung gibt es dann Bewehrungsskizzen, Angaben zu den Profilen und Festlegungen zu den Schweißnähten. Besonders die Übertragung des doch nennenswerten Torsionsmoment in den Baugrund war tricki.

Projektnummer

13_2025

Schlagwörter

Rammpfahl, Kopfauslenkung, Windlasten, Abrostung, Pfahleinspannung, Übertragung Torsionsmoment, vertikale Lastabtragung, Druck - Sog - Einwirkung, Knaggen, Werkstattform

Grafiken